Porzione di trifamiliare in vendita

Marcellina, Via delle Peschie
€ 189.000
5 locali 5 locali
122 Mq 122 Mq
3 bagni 3 bagni

Porzione di trifamiliare in vendita

Marcellina, Via delle Peschie

Descrizione annuncio

Nell’affascinante borgo Medievale di San Polo dei Cavalieri, proponiamo l’acquisto di capotesta di villino a schiera completato da ingresso indipendente e corte pavimentata.

La proprietà sorge in zona residenziale, piu’ precisamente all’interno del comprensorio “ Le Peschie” caratterizzato e arricchito dalla presenza di proprietà indipendenti e appartamenti, a 1 km di distanza dal centro di Marcellina e a 10 km da San Polo dei Cavalieri; provincia di Roma: l’ abitazione è raggiungibile comodamente in strada asfaltata.

La casa è accessibile tramite un comodo cancello pedonale, che conduce a una corte pavimentata, la quale circonda l’abitazione su tre lati. Questo spazio esterno, esclusivo e facilmente gestibile, è arricchito da un barbecue in muratura, rendendolo ideale per vivere momenti di relax all’aperto, organizzare pranzi e cene in compagnia o allestire un’accogliente area verde privata.

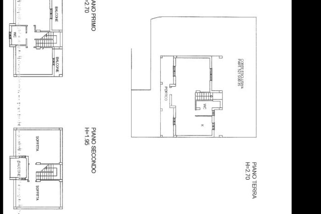
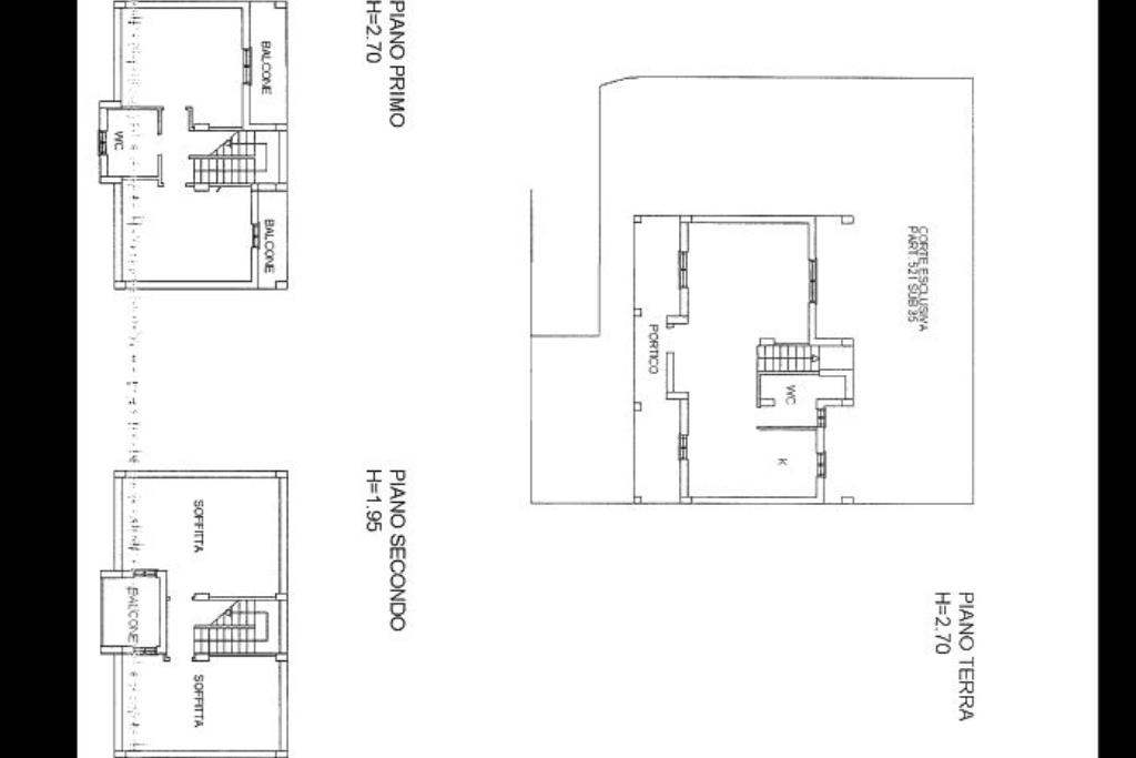
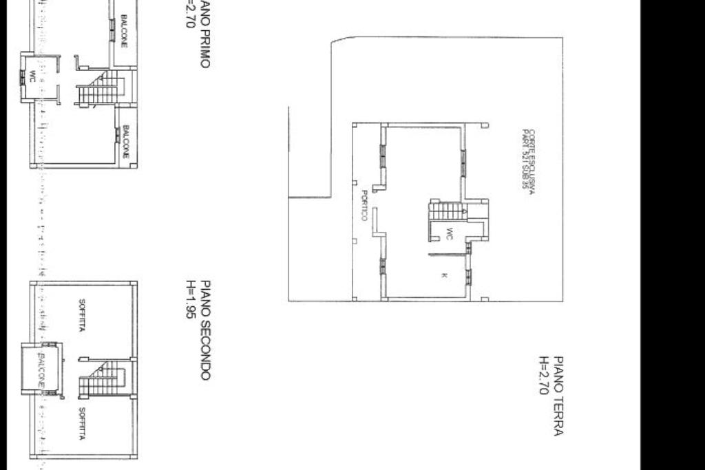
Giunti alla proprietà costruita negli anni 2009 con la sua struttura in cemento armato, la casa ha una metratura totale di 122 mq che comprende il reale uso abitativo, appartenente alla Categoria Catastale A/7 è strutturata su 3 livelli:

Il PIANO TERRA: è il livello dove si sviluppa l’intera zona giorno e consente di accedere tramite porte finestre sulla corte. Il piano è composto d’ampi e luminosi spazi regolari: qui troviamo la sala da pranzo, il bagno con box doccia e l’angolo cottura.

IL PRIMO PIANO : è adibito alla zona notte, composta da disimpegno, 2 camere da letto matrimoniali e bagno con box doccia. Ogni camera è dotata da balconi, che donano un alto grado di luminosità.

Attraverso la comoda scala saliamo il piano mansardato abitabile, dedicato anch’esso alla zona notte, composta da disimpegno, 2 camere matrimoniali di cui una con bagno padronale. Completa il piano un piccolo terrazzino. All'abitazione sono integrati 2 posti auto; uno di fronte alla casa e l’altro nel parcheggio del comprensorio.

La villa si presenta in buone condizioni e funzionale. Il sistema di riscaldamento è alimentato da una caldaia a metano, affiancato da tre climatizzatori: uno installato al piano terra e due nel piano mansardato, per garantire comfort in ogni stagione. L’abitazione è servita da acqua diretta, con l’aggiunta di un serbatoio con autoclave per assicurare una riserva costante.

Dal punto di vista energetico, il villino è totalmente autonomo grazie a un impianto fotovoltaico di ultima generazione composto da 14 pannelli, integrato da batterie di accumulo da 15 kWh, che contribuiscono a un’elevata efficienza e a un notevole risparmio sui consumi. Gli infissi interni sono in doppio vetro legno e gli esterni in alluminio, mentre il portone d’accesso è blindato.

La centralità e quindi la vicinanza a tutti i servizi permette di raggiungere comodamente a piedi i mezzi di trasporto.

Il villino è adatto per qualsiasi tipo di esigenza, il vantaggio di scegliere questa proprietà sta nella comodità, nel suo stato di costruzione ed ubicazione.

Nonostante, si trovi nel comune di San Polo dei Cavalieri, la sua particolarità è data dalla netta vicinanza a Marcellina ben collegata con la capitale e la stazione ferroviaria del treno e a 10 minuti di distanza da Guidonia.

Mostra tutto

Nelle vicinanze

Trasporto pubblico Trasporto pubblico
Trasporto pubblico
100 m
Scuole Scuole
Scuola Media G. Neri
1,2 Km
Materna
1,2 Km
Scuola Materna
1,3 Km
Elementare
1,5 Km
Farmacia Farmacia
Comunale
280 m
Rossetti
1,6 Km
Supermercati Supermercati
Risp
1,4 Km
Negozi Negozi
Negozi
150 m
La Fascina
1,0 Km
Margherita
1,6 Km
Pompilio
1,7 Km
Bar Bar
Bar
70 m
L'americano
960 m
Centrale
1,5 Km
Barcollo ma non Mollo
1,6 Km
Ristoranti Ristoranti
Campanellù
130 m
La Villetta
210 m
Pierino
450 m
Isolina
1,2 Km
Lu Grisciu
1,3 Km
Mostra tutto

Caratteristiche

Rif.:
61091768
Piano:
1 di 3 (Piano su più livelli)
Posti auto:
2
Balconi:
3
Camere da letto:
4
Arredamento:
Assente
Mostra tutto
Prezzo Prezzo
€ 189.000
Rata mutuo Rata mutuo
€ 892 / mese
Spese annue Spese annue
€ 0
Proponi il tuo prezzoProponi il tuo prezzo

Classe Energetica

G
G
G
G
G
G
G
G
G
EP globale non rinnovabile:
199.30 kW h/m² anno
EP globale rinnovabile:
2.96 kW h/m² anno
EP invernale del fabbricato:
EP estiva del fabbricato:
Anno di costruzione:
2009
Riscaldamento:
Autonomo
Tipo impianto:
A radiatori
Tipo alimentazione:
Aria

Ti interessa visionare l'immobile?

Fissa un appuntamento  Fissa un appuntamento

Richiedi informazioni

Clicca su Leggi per aprire l'informativa
* Questi campi sono obbligatori

Calcola il tuo mutuo

Semplice e senza impegno
Anticipo

( % )
Mutuo

( % )

pochi semplici passi

inserisci i tuoi dati
Questionario completato
Grazie per aver richiesto un appuntamento senza impegno con un nostro Consulente del Credito e Assicurativo.

Hai inserito correttamente tutti i dati necessari e a breve riceverai una e-mail con un link da convalidare per inviare i tuoi dati.
Affiliato
Gruppo Sabina Palombara Srl
Viale Ungheria, 19 00018 Palombara Sabina (RM)

Il nostro staff


  • Jasmin Dessì
    Affiliata

  • Ilaria Conti
    Coordinatrice

  • Francesca Parmegiani
    Collaboratrice
Viale Ungheria, 19 00018 Palombara Sabina (RM)
Zona: Palombara-Moricone
Mostra su mappa
Affiliato
Gruppo Sabina Palombara Srl
Viale Ungheria, 19 00018 Palombara Sabina (RM)

2025 Tecnocasa Franchising S.p.A. - P. IVA 08365160152 - Via Monte Bianco 60/A 20089 Rozzano (MI). Ogni agenzia ha un proprio titolare ed è autonoma. Privacy policy | Policy utilizzo | Cookie policy