Quadrilocale in vendita

Palombara Sabina, Via degli ulivi
€ 69.000
Prezzo aggiornato
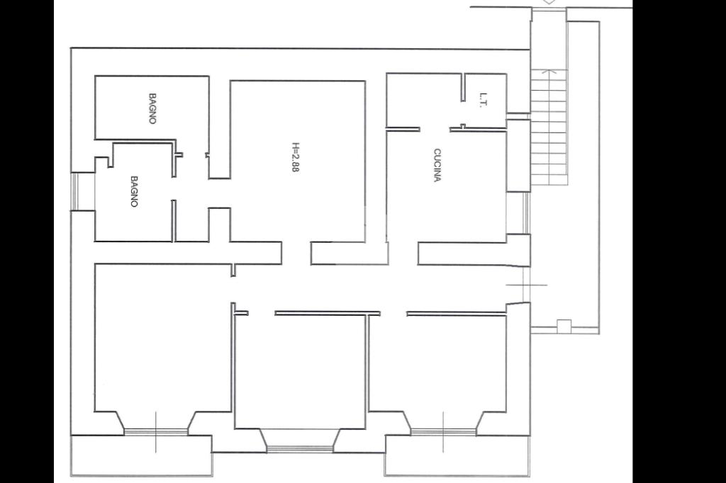
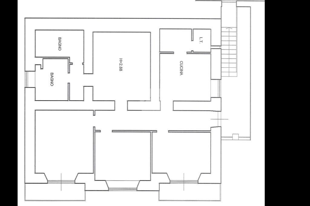
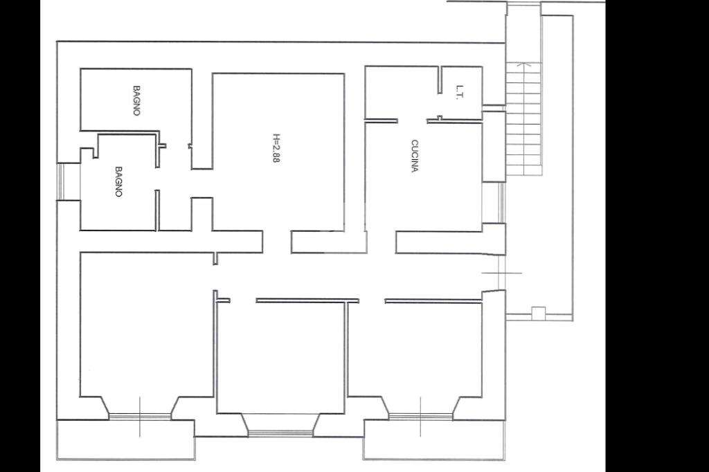
4 locali 4 locali
101 Mq 101 Mq
1 bagno 1 bagno

Quadrilocale in vendita

Palombara Sabina, Via degli ulivi

Descrizione annuncio

Se stai cercando una casa spaziosa, comoda e funzionale, a due passi dal centro ma in un contesto tranquillo,questa è la soluzione perfetta per te. Nel comune di Palombara Sabina, in Via degli Ulivi, a pochi metri dal Municipio e dai principali servizi, proponiamo in vendita un quadrilocale di 101 mq con ingresso indipendente, situato al piano seminterrato diuna piccola palazzina degli anni ’70 composta da soli quattro appartamenti. L’immobile presenta una distribuzione interna tipica dell’epoca, con ambienti ampi e ben distinti: un doppiodisimpegno separa la zona giorno dalla zona notte. La zona notte è composta da tre camere matrimonialiluminose, mentre la zona giorno include sala da pranzo, cucina con piccola dispensa e due bagni, uno condoccia e uno con vasca. Completano la proprietà due balconi, accessibili da due delle camere matrimoniali, dai quali si gode unpiacevole affaccio sulla campagna circostante. Dal punto di vista tecnico l’abitazione dispone di acqua e fognatura dirette, riscaldamento a metano epavimenti in marmittoni. Gli infissi sono in vetro singolo con persiane in legno. L’immobile necessita dilavori di ristrutturazione, offrendo così la possibilità di personalizzare gli spazi secondo i propri gusti ed esigenze. Il valore aggiunto? L’ampia metratura, la tripla esposizione che garantisce luminosità e la posizione centrale,che permette di raggiungere comodamente a piedi servizi, uffici e attività commerciali. Ottimi i collegamenti grazie alle linee Cotral per Roma e per la stazione ferroviaria di Pianabella di Montelibretti; Guidonia Montecelio e Tivoli distano circa 20 soluzione ideale per famiglie o per chi desidera ampi spazi in una zona centrale e ben collegata.

Mostra tutto

Nelle vicinanze

Trasporto pubblico Trasporto pubblico
Trasporto pubblico
440 m
Scuole Scuole
Scuola Materna
320 m
Scuole
490 m
Elementari
540 m
Scuole Medie
580 m
Farmacia Farmacia
Farmacia
340 m
Ospedali Ospedali
San Salvatore
420 m
Supermercati Supermercati
Supermercati
410 m
Conad
420 m
Negozi Negozi
Negozi
490 m
Bar Bar
Bar
420 m
Picco
580 m
Ristoranti Ristoranti
Annamaria
250 m
Marube sushi
460 m
L'Uliveto
2,0 Km
Mostra tutto

Caratteristiche

Rif.:
61183461
Piano:
1 di 3 (Piano seminterrato)
Balconi:
2
Camere da letto:
3
Arredamento:
Assente
Condizionamento:
Assente
Mostra tutto
Prezzo Prezzo
€ 69.000
Rata mutuo Rata mutuo
€ 325 / mese
Spese annue Spese annue
€ 0
Proponi il tuo prezzoProponi il tuo prezzo

Classe Energetica

F
F
F
F
F
F
F
F
F
EP globale non rinnovabile:
0.00 kW h/m² anno
EP globale rinnovabile:
0.00 kW h/m² anno
EP invernale del fabbricato:
EP estiva del fabbricato:
Anno di costruzione:
1965
Riscaldamento:
Autonomo
Tipo impianto:
A radiatori
Tipo alimentazione:
Metano

Prezzo ridotto di €1 (8%%)

Ti interessa visionare l'immobile?

Fissa un appuntamento  Fissa un appuntamento

Richiedi informazioni

Clicca su Leggi per aprire l'informativa
* Questi campi sono obbligatori

Calcola il tuo mutuo

Semplice e senza impegno
Anticipo

( % )
Mutuo

( % )

pochi semplici passi

inserisci i tuoi dati
Questionario completato
Grazie per aver richiesto un appuntamento senza impegno con un nostro Consulente del Credito e Assicurativo.

Hai inserito correttamente tutti i dati necessari e a breve riceverai una e-mail con un link da convalidare per inviare i tuoi dati.
Affiliato
Gruppo Sabina Palombara Srl
Viale Ungheria, 19 00018 Palombara Sabina (RM)

Il nostro staff


  • Jasmin Dessì
    Affiliata

  • Ilaria Conti
    Coordinatrice

  • Francesca Parmegiani
    Collaboratrice
Viale Ungheria, 19 00018 Palombara Sabina (RM)
Zona: Palombara-Moricone
Mostra su mappa
Affiliato
Gruppo Sabina Palombara Srl
Viale Ungheria, 19 00018 Palombara Sabina (RM)

2026 Tecnocasa Franchising S.p.A. - P. IVA 08365160152 - Via Monte Bianco 60/A 20089 Rozzano (MI). Ogni agenzia ha un proprio titolare ed è autonoma. Privacy policy | Policy utilizzo | Cookie policy