Rustico in vendita

Palombara Sabina, Strada di colle calderino
€ 23.000
Prezzo aggiornato
2 locali 2 locali
25 Mq 25 Mq

Rustico in vendita

Palombara Sabina, Strada di colle calderino

Descrizione annuncio

Nella bella campagna di Palombara Sabina, in posizione dominate e accesso diretto da Strada Provinciale Pascolare, proponiamo in vendita rustico con terreno agricolo di 6895 mq collinare.

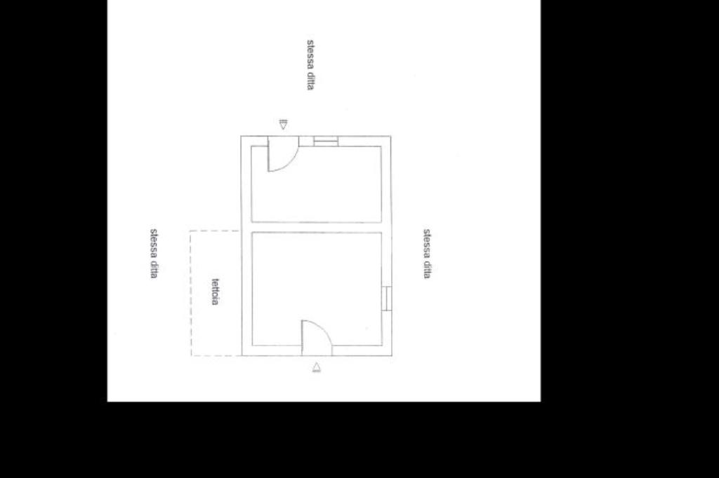
Il magazzino accatastato in C/2 misura circa 21 mq su un unico livello composto da 2 vani di cui l'ambiente piu' grande è costituito da camino.

La proprietà è coltivata con circa 60 piante di ulivo. Attualmente gli alberi non sono curati, il terreno è ripulito e si evince la comodità, l'ampiezza degli spazi per lavorarlo e vanta l'ottima esposizione soleggiata.

Dati Tecnici: Recintato su 4 lati con pali di cemento e rete, allaccio alla fornitura elettrica e l'acqua fornita dal pozzo.

Il punto di forza è senza dubbio la sua ubicazione, la proprietà si trova a 6 km dallo svincolo di Via Salaria. Se stai cercando una soluzione a pochi passi da Roma e desideri godere della privacy e della tranquillità della campagna,
questa è l'occasione che fa per te!

Immobile non soggetto a classificazione energetica.

Mostra tutto

Nelle vicinanze

Negozi Negozi
Vapoforno
1,6 Km
Bar Bar
BAR GELATERIA Serrecchia
1,6 Km
Ristoranti Ristoranti
Agriturismo La Matta Fattoria
970 m
Mostra tutto

Caratteristiche

Rif.:
60659075
Piano:
1 di 1 (Piano terra con giardino)
Camere da letto:
1
Arredamento:
Assente
Condizionamento:
Assente
Ascensore:
No
Mostra tutto
Prezzo Prezzo
€ 23.000
Rata mutuo Rata mutuo
€ 109 / mese
Spese annue Spese annue
€ 0
Proponi il tuo prezzoProponi il tuo prezzo
Immobile valutato con T·Valuta

Classe Energetica

Questo immobile è esente da classe energetica
Anno di costruzione:
1967
Riscaldamento:
Assente

Prezzo ridotto di €1 (12%%)

Ti interessa visionare l'immobile?

Fissa un appuntamento  Fissa un appuntamento

Richiedi informazioni

Clicca su Leggi per aprire l'informativa
* Questi campi sono obbligatori

Calcola il tuo mutuo

Semplice e senza impegno
Anticipo

( % )
Mutuo

( % )

pochi semplici passi

inserisci i tuoi dati
Questionario completato
Grazie per aver richiesto un appuntamento senza impegno con un nostro Consulente del Credito e Assicurativo.

Hai inserito correttamente tutti i dati necessari e a breve riceverai una e-mail con un link da convalidare per inviare i tuoi dati.
Affiliato
Gruppo Sabina Palombara Srl
Viale Ungheria, 19 00018 Palombara Sabina (RM)

Il nostro staff


  • Jasmin Dessì
    Affiliata

  • Ilaria Conti
    Coordinatrice

  • Francesca Parmegiani
    Collaboratrice
Viale Ungheria, 19 00018 Palombara Sabina (RM)
Zona: Palombara-Moricone
Mostra su mappa
Affiliato
Gruppo Sabina Palombara Srl
Viale Ungheria, 19 00018 Palombara Sabina (RM)

2025 Tecnocasa Franchising S.p.A. - P. IVA 08365160152 - Via Monte Bianco 60/A 20089 Rozzano (MI). Ogni agenzia ha un proprio titolare ed è autonoma. Privacy policy | Policy utilizzo | Cookie policy