Villa singola in vendita

Palombara Sabina, Str. di colle Pedeschiavo
€ 229.000
7 locali 7 locali
286 Mq 286 Mq
4 bagni 4 bagni

Villa singola in vendita

Palombara Sabina, Str. di colle Pedeschiavo

Descrizione annuncio

Palombara Sabina, nel territorio della Provincia di Roma, in posizione strategica e ben servita dai principali punti vendita, uffici amministrativi e dal capolinea Cotral.

C’è un luogo tra le dolci colline di Strada di Colle Pedeschiavo, in un contesto residenziale, ma immerso nel verde proponiamo in vendita una porzione di villa bifamiliare, adagiata su un terreno comodo e godibile, che garantisce totale privacy.

La villa, completamente recintata, è caratterizzata da un delizioso viale pavimentato circondato dal verde, che conduce all’abitazione. Gli spazi esterni, oltre al giardino, offrono un portico affacciato sulla corte pavimentata e proseguono nella parte posteriore della proprietà con un terreno coltivato da circa 60 alberi di ulivo produttivi. A completare la funzionalità e l’estetica della proprietà, è presente un cancello secondario con accesso diretto al terreno. Queste aree esterne sono il fiore all’occhiello della soluzione, dove trascorrere bellissimi attimi e momenti di relax.

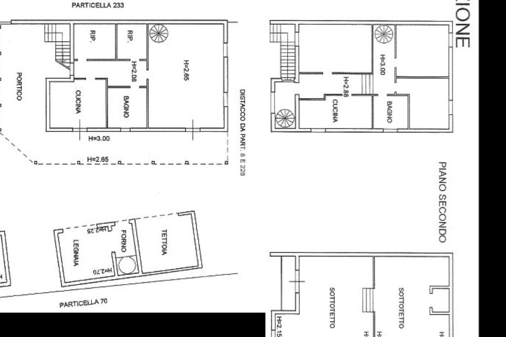
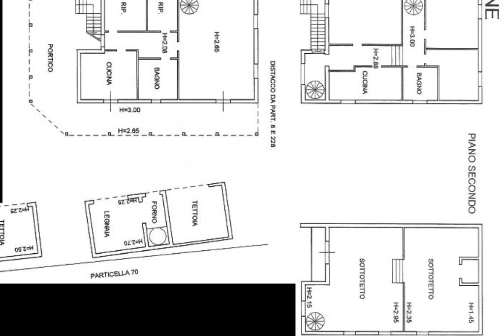
La proprietà costruita negli anni ’70, misura 286 mq, si sviluppa su 3 livelli, di cui 2 collegati internamente tra loro, mentre il piano secondo, ovvero la mansarda , ha ingresso indipendente.

Il portico aperto conduce al PIANO TERRA composto da: da cucina abitabile dove riscoprire il gusto delle ricette di un tempo, il disimpegno, 2 ripostigli, il bagno funzionale con vasca e un’ ampia, spaziosa sala da pranzo.

Salendo la scala di legno, il PRIMO PIANO ti accoglie con altri ambienti: il disimpegno, 3 camere da letto matrimoniale, uno studio e bagno con vasca.

PIANO SECONDO; la mansarda ristrutturata nel 2008, composta da zona giorno con camino e balcone con vista panoramica sul borgo di Palombara Sabina, la cucina, 2 bagni, disimpegno e 2 camere da letto matrimoniali.

DATI TECNICI: Il riscaldamento autonomo con 2 caldaie sia a pellet che a pellet e camino. L’ utenza idrica e’ fornita principalmente dal pozzo e per l’impianto fognario c’è la fossa infissi ai piani inferiori sono vetro singolo e serrande con grate, in mansarda doppio vetro alluminio con tapparelle.

La villa si mostra allo stato originale, aspetta solo il tuo tocco personale, potrai personalizzarla a piacimento.

La villa è ubicata nella splendida cornirce di Collepedeschiavo, a pochi chilometri dalla Stazione di Pianabella, comoda e veloce infrastruttura, che collega a Roma con cadenza dei treni ogni 15 minuti per le stazioni ferroviarie principali.

Questa non è solo una casa. È un invito a rallentare, a respirare, a ricominciare.

È il luogo perfetto per chi sogna giornate serene, cene all'aperto, silenzi condivisi, o semplicemente un rifugio da chiamare 'casa'.

Mostra tutto

Nelle vicinanze

Scuole Scuole
Scuola Materna
2,8 Km
Scuole Medie
2,9 Km
Scuole
2,9 Km
Elementari
2,9 Km
Ospedali Ospedali
San Salvatore
2,8 Km
Negozi Negozi
Vapoforno
2,3 Km
Bar Bar
BAR GELATERIA Serrecchia
2,3 Km
Bar
2,9 Km
Ristoranti Ristoranti
Agriturismo La Matta Fattoria
2,6 Km
Marube sushi
2,9 Km
Mostra tutto

Caratteristiche

Rif.:
61157949
Piano:
1 di 3 (Piano su più livelli)
Posti auto:
2
Balconi:
1
Camere da letto:
4
Arredamento:
Assente
Mostra tutto
Prezzo Prezzo
€ 229.000
Rata mutuo Rata mutuo
€ 1.083 / mese
Spese annue Spese annue
€ 0
Proponi il tuo prezzoProponi il tuo prezzo

Classe Energetica

G
G
G
G
G
G
G
G
G
EP invernale del fabbricato:
EP estiva del fabbricato:
Anno di costruzione:
1970
Riscaldamento:
Autonomo
Tipo impianto:
A radiatori
Tipo alimentazione:
GPL

Ti interessa visionare l'immobile?

Fissa un appuntamento  Fissa un appuntamento

Richiedi informazioni

Clicca su Leggi per aprire l'informativa
* Questi campi sono obbligatori

Calcola il tuo mutuo

Semplice e senza impegno
Anticipo

( % )
Mutuo

( % )

pochi semplici passi

inserisci i tuoi dati
Questionario completato
Grazie per aver richiesto un appuntamento senza impegno con un nostro Consulente del Credito e Assicurativo.

Hai inserito correttamente tutti i dati necessari e a breve riceverai una e-mail con un link da convalidare per inviare i tuoi dati.
Affiliato
Gruppo Sabina Palombara Srl
Viale Ungheria, 19 00018 Palombara Sabina (RM)

Il nostro staff


  • Jasmin Dessì
    Affiliata

  • Ilaria Conti
    Coordinatrice

  • Francesca Parmegiani
    Collaboratrice
Viale Ungheria, 19 00018 Palombara Sabina (RM)
Zona: Palombara-Moricone
Mostra su mappa
Affiliato
Gruppo Sabina Palombara Srl
Viale Ungheria, 19 00018 Palombara Sabina (RM)

2026 Tecnocasa Franchising S.p.A. - P. IVA 08365160152 - Via Monte Bianco 60/A 20089 Rozzano (MI). Ogni agenzia ha un proprio titolare ed è autonoma. Privacy policy | Policy utilizzo | Cookie policy